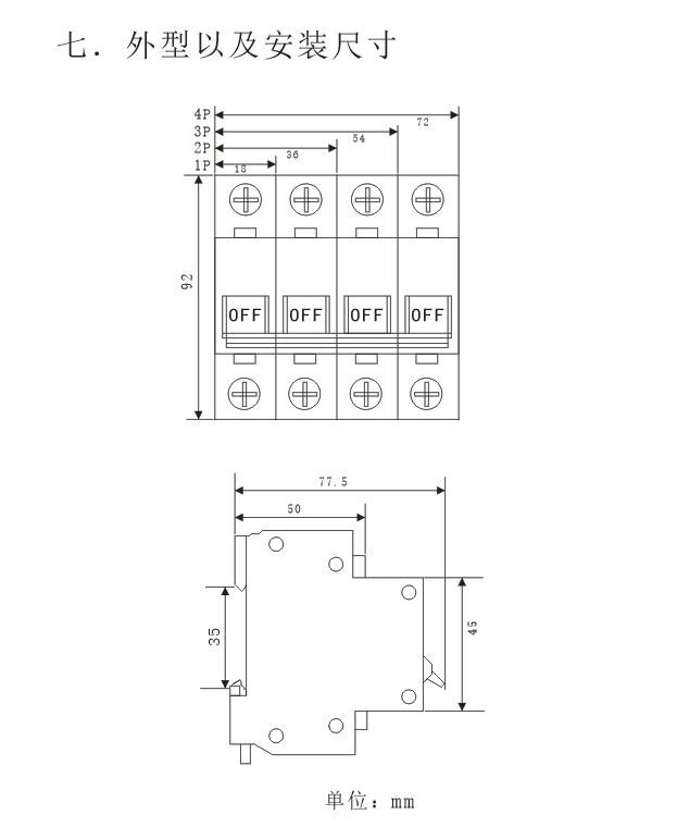
SVNB8C 后备保护器